|
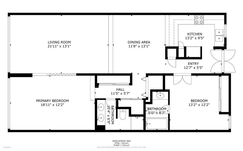
Unit was completely renovated by licensed contractor and board approved - waterproof flooring, new everything. Peaceful ocean and mountain views. Enjoy abundant natural light and refreshing breezes in this 19th-floor ocean-view condo. Featuring 2 bedrooms, 2 bathrooms, and 2 parking stalls ( one covered extra large stall). The building offers resort-style amenities, including multiple swimming pools, a heated pool, an exercise room, putting green, a recreation area and room, a resident manager, a sauna, 24-hour security, trash chutes, walking/jogging paths, and a whirlpool. The seller is motivated and open to offers. This opportunity may be ideal for someone planning to live in Hawaii temporarily over the next several years, or who have family members attending school here. Please note that the 7 year leasehold interest is not renewable.
| DAYS ON MARKET | 13 | LAST UPDATED | 11/24/2025 |
|---|---|---|---|
| TRACT | HAHAIONE-LOWER | YEAR BUILT | 1975 |
| COMMUNITY | HawaiiKai | COUNTY | Oahu |
| STATUS | Active | PROPERTY TYPE(S) | Condo/Townhouse/Co-Op |
| Elementary School | Hahaione |
|---|---|
| Jr. High School | Niu Valley |
| High School | Kaiser |
| ADDITIONAL DETAILS | |
| AMENITIES | Cable TV, Internet, Water |
|---|---|
| AREA | HawaiiKai |
| CONSTRUCTION | Concrete |
| HOA DUES | 1344 |
| INTERIOR | Storage |
| LOT | 330315 acre(s) |
| LOT DIMENSIONS | 330315 |
| STORIES | 1 |
| STYLE | HighRise |
| SUBDIVISION | HAHAIONE-LOWER |
| TAXES | 2448 |
| VIEW | Yes |
| VIEW DESCRIPTION | Canal, Mountain(s), Ocean |
| ZONING | 12 - A-2 Medium Density Apartme |
MORTGAGE CALCULATOR
TOTAL MONTHLY PAYMENT
0
P
I
*Estimate only
| SATELLITE VIEW |
| / | |
We respect your online privacy and will never spam you. By submitting this form with your telephone number
you are consenting for Celester
Thomas to contact you even if your name is on a Federal or State
"Do not call List".
Listed with List Sotheby's Int'l Realty
Based on information from the Multiple Listing Service of HiCentral MLS, Ltd.
active listings last updated on 12/6/25 1:13 PM PST.
Information is deemed reliable but not guaranteed.
Copyright: 2025 by HiCentral MLS, Ltd.
IDX information is provided exclusively for consumers' personal, non-commercial use and may not be used for any purpose other than to identify prospective properties consumers may be interested in purchasing.
Some of the active listings appearing on this site may be listed by other REALTORS®. If you are interested in those active listings, our company may represent you as the buyer's agent. If the active listing you are interested in is our company’s active listing, you may speak to one of our agents regarding your options for representation.
active listings last updated on 12/6/25 1:13 PM PST.
Information is deemed reliable but not guaranteed.
Copyright: 2025 by HiCentral MLS, Ltd.
IDX information is provided exclusively for consumers' personal, non-commercial use and may not be used for any purpose other than to identify prospective properties consumers may be interested in purchasing.
Some of the active listings appearing on this site may be listed by other REALTORS®. If you are interested in those active listings, our company may represent you as the buyer's agent. If the active listing you are interested in is our company’s active listing, you may speak to one of our agents regarding your options for representation.
This IDX solution is (c) Diverse Solutions 2025.