|
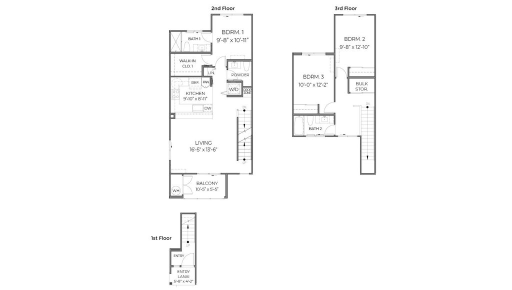
This three story 3 bedroom and 2.5 bathroom condominium consists of 1,317 square feet of net living area. When you step into this home, you will be greeted by a staircase that leads you into the living room and peninsula kitchen featuring stainless steel appliances and white soft-close cabinets. Nearby is a convenient powder room. On the second floor, you'll find the primary bedroom with a walk-in closet and ensuite bathroom with a vanity sink and walk-in shower. Relax and take in the fresh air on the balcony off the living room. The third floor features two secondary bedrooms each with mirrored sliding door closets and a secondary bathroom with a combination bathtub and shower adjacent to an open concept family room. Split air conditioning and modern appliances including a range/oven, micro-hood, dishwasher, refrigerator, and washer/dryer allow for ease of living. RTE starting 10/4-10/19 Special Pricing.
| DAYS ON MARKET | 103 | LAST UPDATED | 10/19/2025 |
|---|---|---|---|
| TRACT | HOOPILI-ALANA | YEAR BUILT | 2025 |
| COMMUNITY | Ewaplain | COUNTY | Oahu |
| STATUS | Pending | PROPERTY TYPE(S) | Condo/Townhouse/Co-Op |
| PRICE HISTORY |
| Login to view Price History |
| ADDITIONAL DETAILS | |
| AREA | Ewaplain |
|---|---|
| HOA DUES | 83 |
| LOT | 0 |
| STORIES | 3+ |
| STYLE | MultiLevel |
| SUBDIVISION | HOOPILI-ALANA |
| VIEW DESCRIPTION | None |
| ZONING | 17 - AMX-2 Medium Density Apt M |
MORTGAGE CALCULATOR
TOTAL MONTHLY PAYMENT
0
P
I
*Estimate only
| SATELLITE VIEW |
| / | |
We respect your online privacy and will never spam you. By submitting this form with your telephone number
you are consenting for Celester
Thomas to contact you even if your name is on a Federal or State
"Do not call List".
Listed with D R Horton Hawaii, LLC
Based on information from the Multiple Listing Service of HiCentral MLS, Ltd.
active listings last updated on 10/28/25 2:31 AM PDT.
Information is deemed reliable but not guaranteed.
Copyright: 2025 by HiCentral MLS, Ltd.
IDX information is provided exclusively for consumers' personal, non-commercial use and may not be used for any purpose other than to identify prospective properties consumers may be interested in purchasing.
Some of the active listings appearing on this site may be listed by other REALTORS®. If you are interested in those active listings, our company may represent you as the buyer's agent. If the active listing you are interested in is our company’s active listing, you may speak to one of our agents regarding your options for representation.
active listings last updated on 10/28/25 2:31 AM PDT.
Information is deemed reliable but not guaranteed.
Copyright: 2025 by HiCentral MLS, Ltd.
IDX information is provided exclusively for consumers' personal, non-commercial use and may not be used for any purpose other than to identify prospective properties consumers may be interested in purchasing.
Some of the active listings appearing on this site may be listed by other REALTORS®. If you are interested in those active listings, our company may represent you as the buyer's agent. If the active listing you are interested in is our company’s active listing, you may speak to one of our agents regarding your options for representation.
This IDX solution is (c) Diverse Solutions 2025.