|
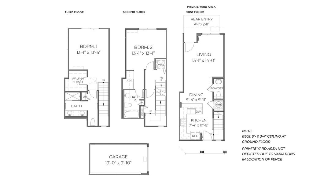
This three story, double primary 2 bedroom and 2 bathroom condominium consists of 1,266 square feet (net) of living area and a private yard area for you to enjoy the outdoors. When you step into this home, you will be greeted by the kitchen featuring stainless steel appliances and white cabinets. The kitchen flows seamlessly into the dining and living room. The second level features a secondary bedroom with a sliding door closet and secondary ensuite bathroom with a combination bathtub and shower. On the third floor, you'll find the primary bedroom with a walk-in closet and ensuite bathroom with a double vanity and walk-in shower. Whole house split air conditioning and modern appliances including a range/oven, micro-hood, dishwasher, refrigerator, and washer/dryer allow for ease of living.
| DAYS ON MARKET | 127 | LAST UPDATED | 9/27/2025 |
|---|---|---|---|
| TRACT | HOOPILI-KAPILI | YEAR BUILT | 2025 |
| COMMUNITY | Ewaplain | COUNTY | Oahu |
| STATUS | Pending | PROPERTY TYPE(S) | Condo/Townhouse/Co-Op |
| ADDITIONAL DETAILS | |
| AMENITIES | Maintenance Grounds, Maintenance Structure |
|---|---|
| AREA | Ewaplain |
| GARAGE | Yes |
| HOA DUES | 83 |
| LOT | 0 |
| LOT DESCRIPTION | Private |
| STORIES | 3+ |
| STYLE | MultiLevel |
| SUBDIVISION | HOOPILI-KAPILI |
| VIEW DESCRIPTION | None |
| ZONING | 12 - A-2 Medium Density Apartme |
MORTGAGE CALCULATOR
TOTAL MONTHLY PAYMENT
0
P
I
*Estimate only
| SATELLITE VIEW |
| / | |
We respect your online privacy and will never spam you. By submitting this form with your telephone number
you are consenting for Celester
Thomas to contact you even if your name is on a Federal or State
"Do not call List".
Listed with D R Horton Hawaii, LLC
Based on information from the Multiple Listing Service of HiCentral MLS, Ltd.
active listings last updated on 10/31/25 9:09 PM PDT.
Information is deemed reliable but not guaranteed.
Copyright: 2025 by HiCentral MLS, Ltd.
IDX information is provided exclusively for consumers' personal, non-commercial use and may not be used for any purpose other than to identify prospective properties consumers may be interested in purchasing.
Some of the active listings appearing on this site may be listed by other REALTORS®. If you are interested in those active listings, our company may represent you as the buyer's agent. If the active listing you are interested in is our company’s active listing, you may speak to one of our agents regarding your options for representation.
active listings last updated on 10/31/25 9:09 PM PDT.
Information is deemed reliable but not guaranteed.
Copyright: 2025 by HiCentral MLS, Ltd.
IDX information is provided exclusively for consumers' personal, non-commercial use and may not be used for any purpose other than to identify prospective properties consumers may be interested in purchasing.
Some of the active listings appearing on this site may be listed by other REALTORS®. If you are interested in those active listings, our company may represent you as the buyer's agent. If the active listing you are interested in is our company’s active listing, you may speak to one of our agents regarding your options for representation.
This IDX solution is (c) Diverse Solutions 2025.