|
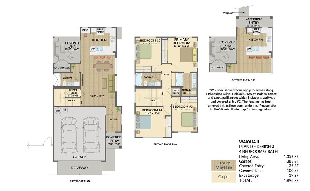
Modern, Efficient, and Convenient! BRAND NEW construction at Waioha II, Ph 3. This single-family detached condominium home with a vinyl fenced yard is located in the highly desirable Koa Ridge master planned community located in Central Oahu. Plan DP design 2 is a 4 bedroom, 3 bath two story home. Just a short drive to Costco, Foodland, restaurants, Central Oahu Regional Park, Waikele Shopping Center and more. Ask about our AWESOME closing costs credit on select homes. White shaker cabinets in the kitchen & bathrooms with soft close drawers and doors. Artic white HI MACS solid surface countertops in the bathrooms with contemporary oval sinks. Split air conditioning units in all bedrooms and living area will keep you cool in the comfort of your home. A solar water heater as well as EV ready for your electric car and PV ready if you plan to add photovoltaic panels.
DAYS ON MARKET | 133 | LAST UPDATED | 8/15/2025 |
---|---|---|---|
TRACT | KOA RIDGE | YEAR BUILT | 2025 |
COMMUNITY | Waipahu | COUNTY | Oahu |
STATUS | Pending | PROPERTY TYPE(S) | Single Family |
Elementary School | Lehua |
---|---|
Jr. High School | Highlands |
High School | Pearl City |
ADDITIONAL DETAILS | |
AMENITIES | Maintenance Grounds, Maintenance Structure |
---|---|
AREA | Waipahu |
GARAGE | Yes |
HOA DUES | 184 |
LOT | 3759 acre(s) |
LOT DESCRIPTION | Cleared, Interior Lot, Level |
POOL DESCRIPTION | None |
STORIES | 2 |
STYLE | Detached |
SUBDIVISION | KOA RIDGE |
UTILITIES | Electricity Available, Other, Phone Available, Sewer Available, Underground Utilities, Water Available |
VIEW DESCRIPTION | None |
WATER | Public |
ZONING | 12 - A-2 Medium Density Apartme |
MORTGAGE CALCULATOR
TOTAL MONTHLY PAYMENT
0
P
I
*Estimate only
SATELLITE VIEW |
/ | |
We respect your online privacy and will never spam you. By submitting this form with your telephone number
you are consenting for Celester
Thomas to contact you even if your name is on a Federal or State
"Do not call List".
Listed with Castle & Cooke Homes Hawaii
Based on information from the Multiple Listing Service of HiCentral MLS, Ltd.
active listings last updated on 10/23/25 1:23 PM PDT.
Information is deemed reliable but not guaranteed.
Copyright: 2025 by HiCentral MLS, Ltd.
IDX information is provided exclusively for consumers' personal, non-commercial use and may not be used for any purpose other than to identify prospective properties consumers may be interested in purchasing.
Some of the active listings appearing on this site may be listed by other REALTORS®. If you are interested in those active listings, our company may represent you as the buyer's agent. If the active listing you are interested in is our company’s active listing, you may speak to one of our agents regarding your options for representation.
active listings last updated on 10/23/25 1:23 PM PDT.
Information is deemed reliable but not guaranteed.
Copyright: 2025 by HiCentral MLS, Ltd.
IDX information is provided exclusively for consumers' personal, non-commercial use and may not be used for any purpose other than to identify prospective properties consumers may be interested in purchasing.
Some of the active listings appearing on this site may be listed by other REALTORS®. If you are interested in those active listings, our company may represent you as the buyer's agent. If the active listing you are interested in is our company’s active listing, you may speak to one of our agents regarding your options for representation.
This IDX solution is (c) Diverse Solutions 2025.