|
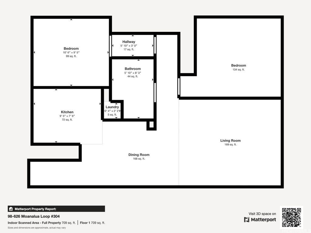
Come check out and Welcome to Pearl Horizons. Relax and take in the views of the ocean, mountains, Pearl Harbor & sunsets. This 2 bedroom, 1 bath unit has a nice open floorplan, ample storage and a stack washer/dryer in unit. Enjoy the amenities which includes a swimming pool, jacuzzi, sauna, bbq area, resident manager, security patrol and many guests parking. Be entertained with the convenient location near Pearlridge Shopping Center, Pali Momi, Restaurants and many more. This is a must see for first time homebuyer or investors. Pet Friendly (Please verify).
| DAYS ON MARKET | 141 | LAST UPDATED | 6/5/2025 |
|---|---|---|---|
| TRACT | PEARLRIDGE | YEAR BUILT | 1985 |
| COMMUNITY | PearlCity | COUNTY | Oahu |
| STATUS | Active | PROPERTY TYPE(S) | Condo/Townhouse/Co-Op |
| Elementary School | Waimalu |
|---|---|
| Jr. High School | Aiea |
| High School | Aiea |
| ADDITIONAL DETAILS | |
| AMENITIES | Sewer, Water |
|---|---|
| AREA | PearlCity |
| CONSTRUCTION | Concrete |
| HOA DUES | 958 |
| INTERIOR | Storage |
| LOT | 0 |
| STORIES | 1 |
| STYLE | LowRise |
| SUBDIVISION | PEARLRIDGE |
| TAXES | 1537.2 |
| VIEW | Yes |
| VIEW DESCRIPTION | Mountain(s), Ocean |
| WATERFRONT DESCRIPTION | Other |
| ZONING | 11 - A-1 Low Density Apartment |
MORTGAGE CALCULATOR
TOTAL MONTHLY PAYMENT
0
P
I
*Estimate only
| SATELLITE VIEW |
| / | |
We respect your online privacy and will never spam you. By submitting this form with your telephone number
you are consenting for Celester
Thomas to contact you even if your name is on a Federal or State
"Do not call List".
Listed with Axis Realty HI
Based on information from the Multiple Listing Service of HiCentral MLS, Ltd.
active listings last updated on 10/23/25 6:34 PM PDT.
Information is deemed reliable but not guaranteed.
Copyright: 2025 by HiCentral MLS, Ltd.
IDX information is provided exclusively for consumers' personal, non-commercial use and may not be used for any purpose other than to identify prospective properties consumers may be interested in purchasing.
Some of the active listings appearing on this site may be listed by other REALTORS®. If you are interested in those active listings, our company may represent you as the buyer's agent. If the active listing you are interested in is our company’s active listing, you may speak to one of our agents regarding your options for representation.
active listings last updated on 10/23/25 6:34 PM PDT.
Information is deemed reliable but not guaranteed.
Copyright: 2025 by HiCentral MLS, Ltd.
IDX information is provided exclusively for consumers' personal, non-commercial use and may not be used for any purpose other than to identify prospective properties consumers may be interested in purchasing.
Some of the active listings appearing on this site may be listed by other REALTORS®. If you are interested in those active listings, our company may represent you as the buyer's agent. If the active listing you are interested in is our company’s active listing, you may speak to one of our agents regarding your options for representation.
This IDX solution is (c) Diverse Solutions 2025.