|
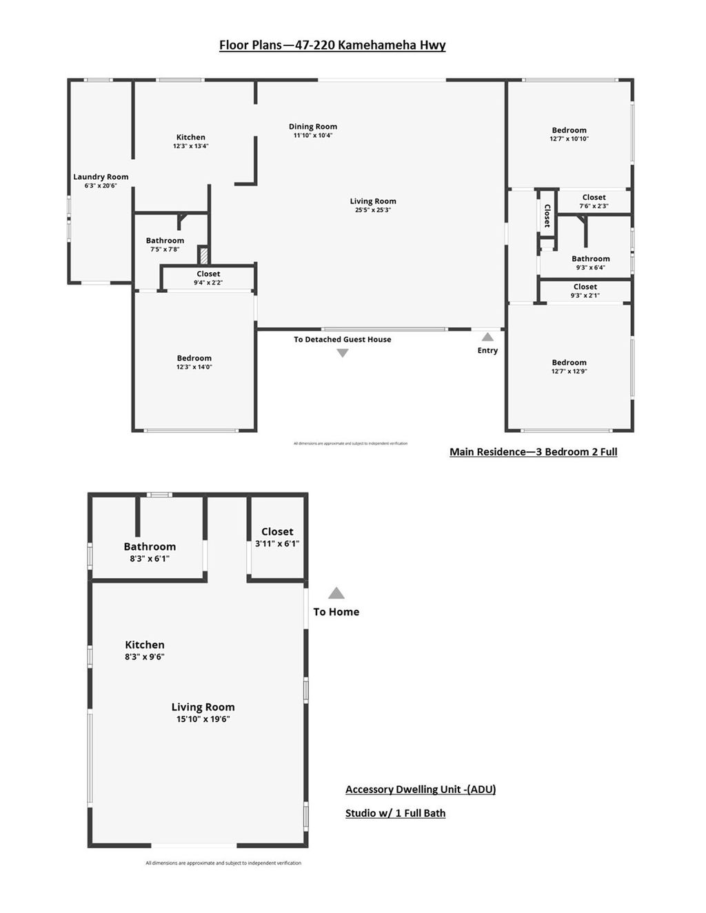
Welcome to Kaneohe Bay oceanside living on Oahu's Windward Coast! This charming single-family residence offers a flexible floor plan with a 3 bedrooms and 2 bath in the main home plus a legally permitted studio Accessory Dwelling Unit (ADU) with its own private & completely separate entrance from the main home with kitchenette, laundry, bath and carport"”perfect for extended family, guests, or rental income. Set on a generous lot just down the street from the shoreline, this home captures the essence of island living with covered lanais, mature tropical landscaping, and ample parking. The main residence features an open-concept living area with natural light, original hardwood floors throughout, classic kitchen with original stainless steel counters, spacious bedrooms, 2 car garage with elevator/lift serving the upper primary home. Conveniently located near local shops, schools, and beaches, with easy access to He'eia Kea Boat Harbor, Kaneohe, Kailua, and Honolulu. Whether you're looking for a full-time residence, a coastal retreat, or a property with built-in rental potential, 47-220 Kamehameha Highway is a rare find on the Windward side.
DAYS ON MARKET | 55 | LAST UPDATED | 8/29/2025 |
---|---|---|---|
TRACT | LULANI OCEAN | YEAR BUILT | 1954 |
COMMUNITY | Kaneohe | COUNTY | Oahu |
STATUS | Active | PROPERTY TYPE(S) | Single Family |
Elementary School | Heeia |
---|---|
Jr. High School | King |
High School | Castle |
ADDITIONAL DETAILS | |
AREA | Kaneohe |
---|---|
GARAGE | Yes |
LOT | 7997 acre(s) |
LOT DESCRIPTION | Cleared, Other, Sloped |
POOL DESCRIPTION | None |
STORIES | 1 |
STYLE | Cottage, Detached, Studio |
SUBDIVISION | LULANI OCEAN |
TAXES | 3396 |
UTILITIES | Cable Available, Electricity Available, Phone Available, Sewer Available, Water Available |
VIEW | Yes |
VIEW DESCRIPTION | Garden, Ocean |
WATER | Public |
WATERFRONT DESCRIPTION | Other |
ZONING | 03 - R10 - Residential District |
MORTGAGE CALCULATOR
TOTAL MONTHLY PAYMENT
0
P
I
*Estimate only
SATELLITE VIEW |
/ | |
We respect your online privacy and will never spam you. By submitting this form with your telephone number
you are consenting for Celester
Thomas to contact you even if your name is on a Federal or State
"Do not call List".
Listed with Berkshire Hathaway HmSvc HI RE
Based on information from the Multiple Listing Service of HiCentral MLS, Ltd.
active listings last updated on 10/23/25 12:25 AM PDT.
Information is deemed reliable but not guaranteed.
Copyright: 2025 by HiCentral MLS, Ltd.
IDX information is provided exclusively for consumers' personal, non-commercial use and may not be used for any purpose other than to identify prospective properties consumers may be interested in purchasing.
Some of the active listings appearing on this site may be listed by other REALTORS®. If you are interested in those active listings, our company may represent you as the buyer's agent. If the active listing you are interested in is our company’s active listing, you may speak to one of our agents regarding your options for representation.
active listings last updated on 10/23/25 12:25 AM PDT.
Information is deemed reliable but not guaranteed.
Copyright: 2025 by HiCentral MLS, Ltd.
IDX information is provided exclusively for consumers' personal, non-commercial use and may not be used for any purpose other than to identify prospective properties consumers may be interested in purchasing.
Some of the active listings appearing on this site may be listed by other REALTORS®. If you are interested in those active listings, our company may represent you as the buyer's agent. If the active listing you are interested in is our company’s active listing, you may speak to one of our agents regarding your options for representation.
This IDX solution is (c) Diverse Solutions 2025.