|
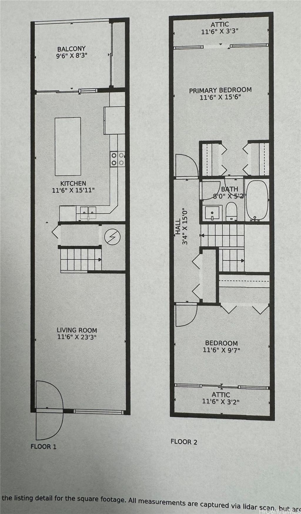
New REDUCED $10K credit for new bedroom floor & Appliances ...Two Story Townhome located on the 12' th hole of Golf Course.977 sq. ft. interior located in Pearl City. Laminate Floors . Upstairs Main bedroom has nice Ocean and golf course views. Window AC and Extra storage area under windows and walk in closet. Back Bedroom cool mountain breezes have extra storage under windows. New Remodeled bathroom with a new bathtub, new sink, and new lights. Downstairs living room and stairway just painted. An open kitchen with room for an Island. New kitchen faucet and values. Relax on lanai with cool breezes, offering serene and peaceful views and birds signing in background. -104 sq. You Can see fireworks sometimes. New Washer and Dryer. Huge Storage area under the lanai.2 Solar panels owned on roof with a newer solar water Heater. Front area gated and private for garden and plants, pets and Children to play. 2 open parking stalls side by side. Take nice walks then jump into the Large Pool right outside your door . Close to Pearl Ridge Mall, Movies, restaurants, shopping, H-1,H-2,& H-3 freeways. Minutes away from Pali Momi Hospital .& Pearl Harbor .Close to schools and Churches.
| DAYS ON MARKET | 137 | LAST UPDATED | 9/2/2025 |
|---|---|---|---|
| TRACT | PEARLRIDGE | YEAR BUILT | 1972 |
| COMMUNITY | PearlCity | COUNTY | Oahu |
| STATUS | Pending | PROPERTY TYPE(S) | Condo/Townhouse/Co-Op |
| Elementary School | Pearl Ridge |
|---|---|
| Jr. High School | Aiea |
| High School | Aiea |
| ADDITIONAL DETAILS | |
| AMENITIES | Sewer, Water |
|---|---|
| AREA | PearlCity |
| HOA DUES | 623 |
| INTERIOR | Storage |
| LOT | 101538 acre(s) |
| STORIES | Two, Multi/Split |
| SUBDIVISION | PEARLRIDGE |
| TAXES | 1320 |
| VIEW | Yes |
| VIEW DESCRIPTION | Golf Course, Garden, Mountain(s), Ocean |
| ZONING | 11 - A-1 Low Density Apartment |
MORTGAGE CALCULATOR
TOTAL MONTHLY PAYMENT
0
P
I
*Estimate only
| SATELLITE VIEW |
| / | |
We respect your online privacy and will never spam you. By submitting this form with your telephone number
you are consenting for Celester
Thomas to contact you even if your name is on a Federal or State
"Do not call List".
Listed with Help-U-Sell Honolulu Prop.
Based on information from the Multiple Listing Service of HiCentral MLS, Ltd.
active listings last updated on 10/23/25 2:31 PM PDT.
Information is deemed reliable but not guaranteed.
Copyright: 2025 by HiCentral MLS, Ltd.
IDX information is provided exclusively for consumers' personal, non-commercial use and may not be used for any purpose other than to identify prospective properties consumers may be interested in purchasing.
Some of the active listings appearing on this site may be listed by other REALTORS®. If you are interested in those active listings, our company may represent you as the buyer's agent. If the active listing you are interested in is our company’s active listing, you may speak to one of our agents regarding your options for representation.
active listings last updated on 10/23/25 2:31 PM PDT.
Information is deemed reliable but not guaranteed.
Copyright: 2025 by HiCentral MLS, Ltd.
IDX information is provided exclusively for consumers' personal, non-commercial use and may not be used for any purpose other than to identify prospective properties consumers may be interested in purchasing.
Some of the active listings appearing on this site may be listed by other REALTORS®. If you are interested in those active listings, our company may represent you as the buyer's agent. If the active listing you are interested in is our company’s active listing, you may speak to one of our agents regarding your options for representation.
This IDX solution is (c) Diverse Solutions 2025.